


Informations complémentaires
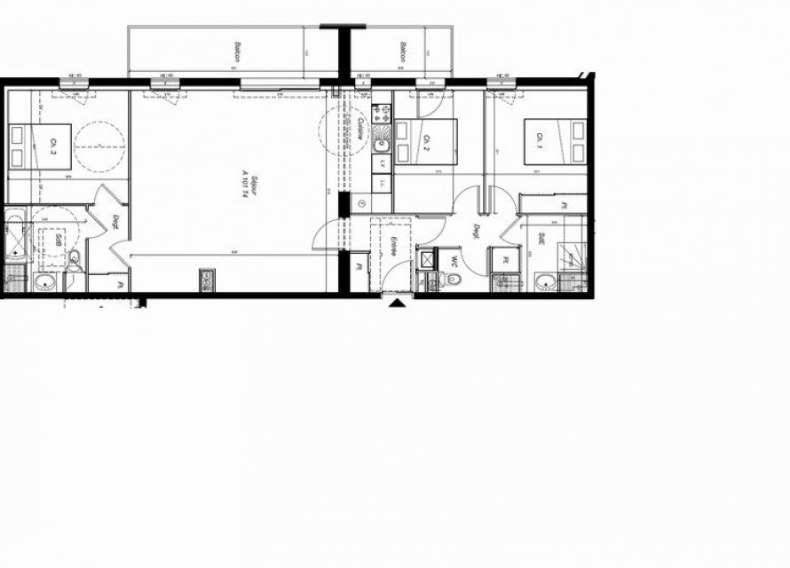
Pièce(s) : 4
Surface : 100.85 m²
Chambre(s) : 3
Terrain : 0 m²
Descriptif du bien
Rare appartement de 100m² avec grand balcon exposé ouest. Salle de bains et salle d'eau. ,Emplacements de parking et garage en sous-sol ,Chauffage gaz de ville, logement BBC ,Livraison début 2017NC
NC


